Büro | zum Kauf | Dachterrasse | Nürnberg Zentrum
| Objekt-Nr | 1089/bvk |
| Gesamtfläche | 2.965 m² |
| Bürofläche | 2.965 m² |
| Kaufpreis | 8.700.000,00 € |
| Dokumente |
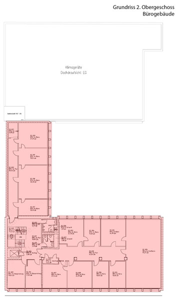
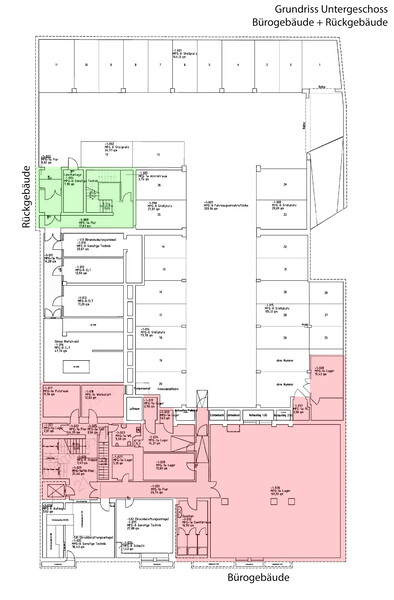
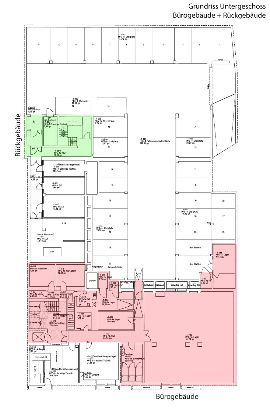
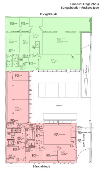
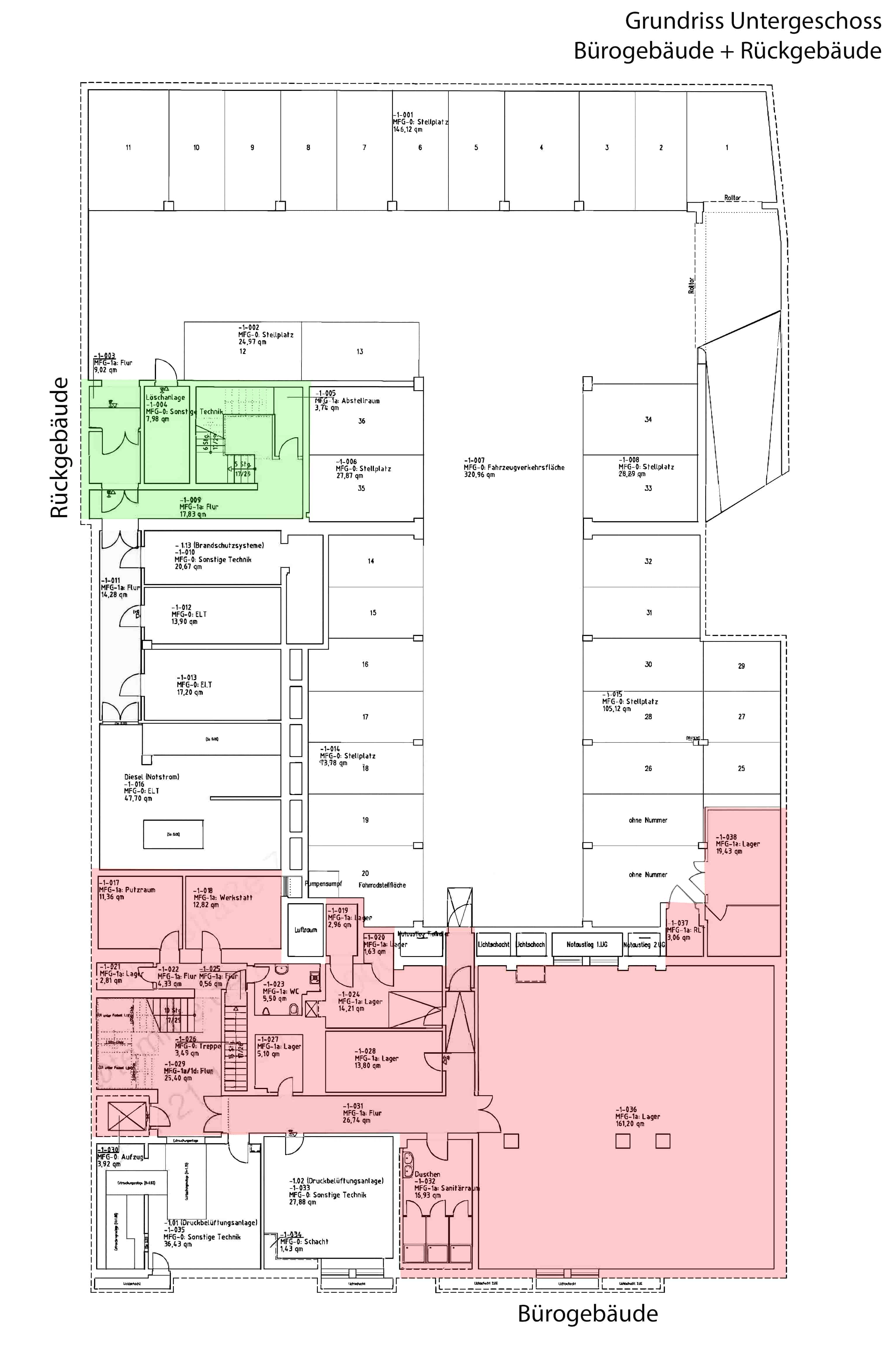
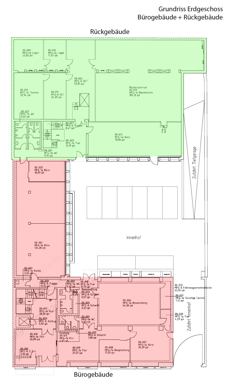
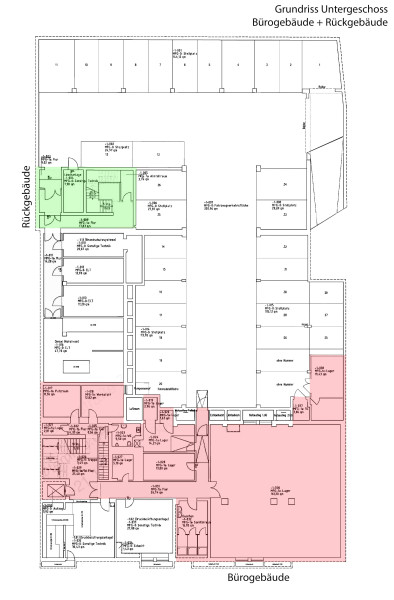
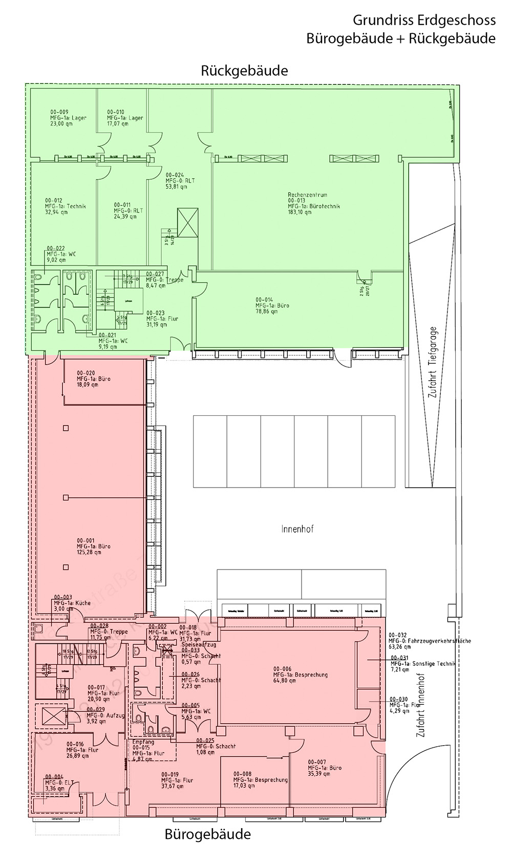
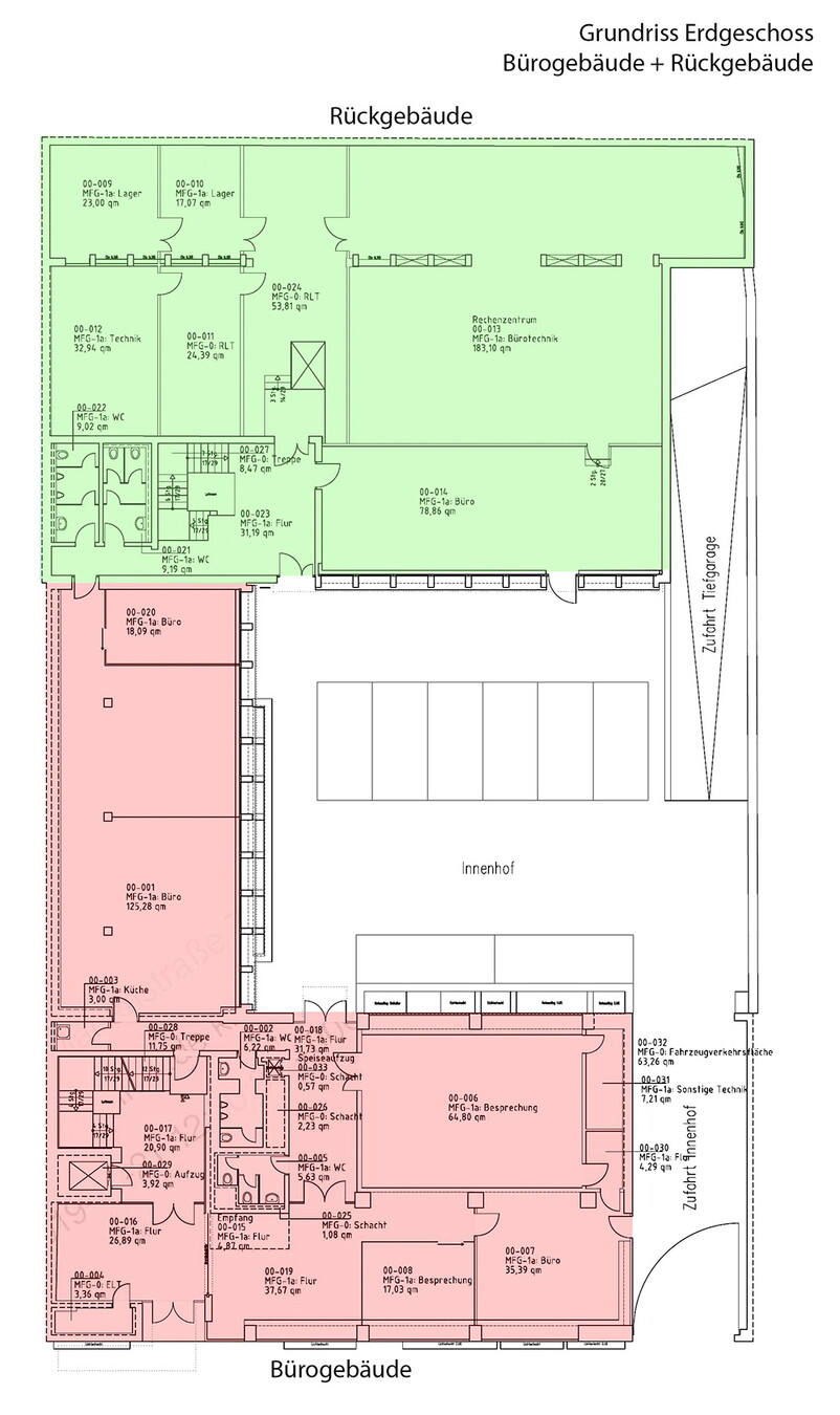
Grundriss UG und TG Grundriss EG Grundriss 1.OG Grundriss 2.OG Grundrisse Grundriss 3.OG Grundriss 4.OG Grundriss 5.OG Energieausweis |
| Verfügbar ab | sofort |
Lage
Ein besonderes Highlight ist die Wöhrder Wiese in unmittelbarer Nachbarschaft, die mit ihren weitläufigen Grünflächen zum Entspannen und Verweilen einlädt. Diese einzigartige Mischung aus urbaner Anbindung und naturnahem Erholungsraum macht den Standort besonders attraktiv.
Flughafen Nürnberg ca. 23 Fahrminuten
Ausstattung
Das Objekt erstreckt sich über 3.565 m² und bietet ein exklusives Arbeitsumfeld, das sich aus Haupt-, Seiten- und Rückgebäude zu einer beeindruckenden Einheit fügt. Die lichtdurchfluteten Räume im Hauptgebäude, ausgestattet mit eleganten Fensterfronten, schaffen eine helle und einladende Atmosphäre. Der repräsentative Eingangsbereich sowie die hauseigene Tiefgarage sorgen für einen bequemen Zugang, während der ebenerdige Zugang über den Innenhof eine problemlose Anlieferung ermöglicht. Die alleinige Nutzung des gesamten Gebäudes garantiert Exklusivität in einer der begehrtesten Lagen Nürnbergs – ideal für anspruchsvolle Nutzung.
- Teilweise Kühldecken, Kühlsegel, Lüftungsanlagen
- CAT-7-Verkabelung
- Anschlusswert Elektro 430 kVA
- Licht-Präsenzsteuerung
- Außenliegender Sonnenschutz
- Hauseigene Tiefgarage mit 3 E-Ladestationen für PKWs
- Ebenerdige Anlieferung
- Personenaufzug
- Notstromaggregat
- Hochwertige Einbaumöbel und Konferenztechnik
- Cafeteria mit Dachterrasse
Beschreibung
GESAMT ca. 2.581 m²
Erdgeschoss ca. 384 m²
GESAMT BÜRO- u. RÜCKGEBÄUDE ca. 2.965 m²
GESAMT ca. 600 m²
GESAMTFLÄCHE ca. 3.565 m²
Sowohl der Seitenflügel als auch das Rückgebäude können unter Umständen aufgestockt werden. Ebenfalls ist es vorstellbar, sowohl den Seitenflügel als auch das aufgestockte Rückgebäude in Wohnen umzuwandeln.
8.700.000,- EUR
ab sofort
Bodenrichtwert: 2.500 EUR/m² (Stichtag: 01.01.2024)
frei seit 01.10.2025
1964
2006: Energetische Generalsanierung 4. OG und 5. OG Hauptgebäude; Einbau von Kühldecken, Sanierung aller Toilettenanlagen, Anbau der straßenseitigen Glasfassade
Wesentliche Energieträger: Fernwärme
Sonstiges
Vertreten durch unser Büro. Wir sind vom Auftraggeber exklusiv beauftragt.
Telefon: 0911 548099-0 | info@temme.de
3,00 % zzgl. gesetzlicher MwSt., aus dem erzielten Kaufpreis, fällig bei Vertragsabschluss.
Wir werden tätig auf der Grundlage unserer Allgemeinen Geschäftsbedingungen, die auf www.temme.de einsehbar sind.
auf die Merkliste setzen Exposé drucken















