Büro | zur Miete | Nürnberg Zentrum | PROVISIONSFREI*
| Objekt-Nr | 1073/bvm |
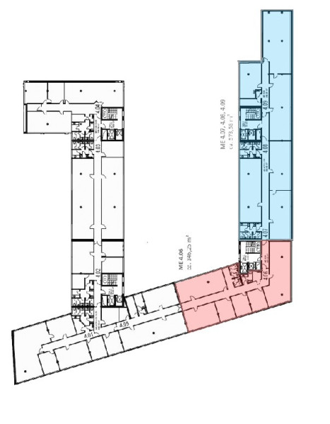
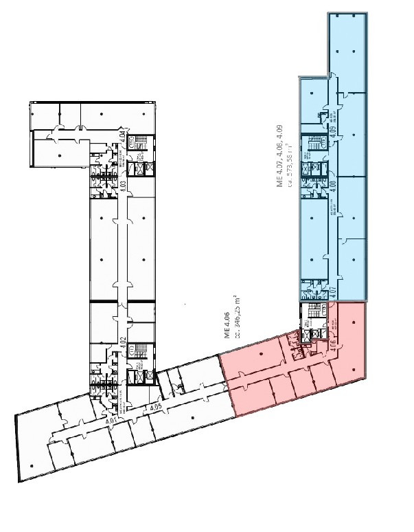
| Bürofläche | 920 m² |
| Teilbar ab | 346 m² |
| Baujahr | 2000 |
| Mietpreis pro m² | 13,90 € |
| Dokumente |
Grundriss 4. OG Grundriss 4. OG Energieausweis |
| Energieausweistyp | Verbrauchsausweis |
| Stromwert | 21 kWh/(m²*a) |
| Wärmewert | 102 kWh/(m²*a) |
| Baujahr | 2000 |
| Verfügbar ab | kurzfristig möglich |
Lage
Das Objekt befindet sich in erstklassiger, äußerst werbewirksamer Lage und verfügt aufgrund seiner Nähe zum Hauptbahnhof über eine hervorragende Verkehrsanbindung. Die nähere Umgebung ist geprägt von diversen Fakultäten der Technischen Hochschule Georg Simon Ohm, Novotel Hotel Nuernberg Centre Ville, Hampton Hotel sowie dem Hauptsitz der Consors Niederlassung Deutschland.
In fußläufiger Entfernung befindet sich das beliebte Naherholungsgebiet Wöhrder Wiese, welches mit seinen großzügigen Grünflächen, baumbeschatteten Sitzgelegenheiten und einem Biergarten zu einer entspannten Mittagspause einlädt. Darüber hinaus sind Restaurants, Cafés und Bäcker in wenigen Gehminuten erreichbar.
Nürnberg Flughafen ca. 16 Fahrminuten
Ausstattung
- OWA-Decke, 2,70 m
- Bürobeleuchtung integriert
- Elektrische Außenjalousien
- Innenliegender Blendschutz
- Teeküche vorhanden
- Ausreichend Sanitärräume
- Doppelboden mit Bodentanks
- Bodenbelag: hauptsächlich neuwertiger Teppichboden, teilweise PVC-Boden
- Raumaufteilung nach Mieterwunsch
Beschreibung
ca. 920 m² Gesamt
ab 13,90 EUR/m² zzgl. 3,50 EUR/m² NK/HK zzgl. MwSt. und vorbehaltlich einer Überprüfung der Mietersonderwünsche, deren Kosten und Verteilung.
3,0 % der mtl. Nettokaltmiete
kurzfristig möglich
Es können Tiefgaragenstellplätze angemietet werden.
Sonstiges
Bei kürzeren Mietvertragslaufzeiten wird der Mieter an der Provision beteiligt.
Kumulativ kommt zu den vorstehend genannten jeweiligen Mieterprovisionen eine zusätzliche Mieterprovision hinzu in Höhe einer (ggf. weiteren) Nettomonatsmiete, wenn der Mieter Optionsrechte erhält, welche es ihm gestatten, die Laufzeit des Mietvertrags durch die Ausübung der Optionsrechte über eine Gesamtdauer von 10 Jahren hinaus zu verlängern.
Vertreten durch unser Büro.
Telefon: 0911 548099-0 | info@temme.de
Wir werden tätig auf der Grundlage unserer Allgemeinen Geschäftsbedingungen, die auf www.temme.de einsehbar sind.
auf die Merkliste setzen Exposé drucken




