Büro | zur Miete | Nürnberg Süd | EUROCOM | hervorragende Verkehrsanbindung | PROVISIONSFREI*
| Objekt-Nr | 862bvm |
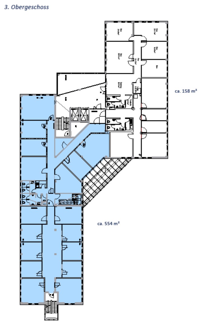
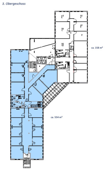
| Bürofläche | 2.079 m² |
| Teilbar ab | 254 m² |
| Mietpreis pro m² | 11,00 € |
| Energieausweistyp | Verbrauchsausweis |
| Energieausweis gültig bis | 23.09.2029 |
| Stromwert | 27 kWh/(m²*a) |
| Wärmewert | 80 kWh/(m²*a) |
| Energieträger | Fernwärme |
| Baujahr | 2000 |
| Verfügbar ab | sofort |
Lage
Das Bürogebäude im Businesspark EUROCOM liegt im südöstlichen Nürnberg, zwischen dem Messezentrum und dem Franken-Einkaufszentrum. Diese Lage bietet eine Fülle an Pausenoptionen: Das Franken-Einkaufszentrum ist nur einen kurzen Spaziergang entfernt, während die Nürnberger Innenstadt nur wenige U-Bahn-Minuten entfernt liegt. ABB, Canon, LBS, R + V und Wöhrl sind bereits etablierte Größen im EUROCOM. Die Branchenvielfalt eröffnet Synergien und macht diesen Standort langfristig attraktiv, da kleine und große Unternehmen zu einem ausgewogenen Nutzermix beitragen.
Innenstadt / Hauptbahnhof ca. 13 Fahrminuten
Ausstattung
- großflächige Zugangstüren
- hochwertiges Foyer mit Naturstein-Bodenbelag
- lichtdurchflutetes Treppenhaus
- attraktives Wegeleit- und Beschilderungssystem
- zwei Personenaufzüge
- außenliegender Sonnenschutz
- Isolierverglasung
- abgehängte Decken
- Fensterbankkabelkanäle für Elektro- und Datenleitung
- Glasfaseranbindung
- aktuelle Raumaufteilung kann individuell nach Bedarf angepaßt werden
- exklusive Ausstattung mit Glaselementen und Dachterrasse
- zugangsgeschützte Tiefgarage
- teilklimatisiert
Beschreibung
ca. 2.079 m² Gesamt
ab 11,00 EUR/m² zzgl. 3,50 EUR/m² NK/HZ zzgl. MwSt. und vorbehaltlich einer Überprüfung der Mietersonderwünsche, deren Kosten jeweils und Verteilung.
ab sofort 3. OG
Es können Tiefgaragenstellplätze á 70,00 EUR zzgl. 10,00 EUR NK zzgl. MwSt. angemietet werden.
Sonstiges
Bei kürzeren Mietvertragslaufzeiten wird über eine Provisionsbeteiligung des Mieters verhandelt.
Kumulativ kommt zu den vorstehend genannten jeweiligen Mieterprovisionen eine zusätzliche Mieterprovision hinzu in Höhe einer (ggf. weiteren) Nettomonatsmiete, wenn der Mieter Optionsrechte erhält, welche es ihm gestatten, die Laufzeit des Mietvertrags durch die Ausübung der Optionsrechte über eine Gesamtdauer von 10 Jahren hinaus zu verlängern.
Vertreten durch unser Büro.
Telefon: 0911 548099-0 | info@temme.de
Wir werden tätig auf der Grundlage unserer Allgemeinen Geschäftsbedingungen, die auf www.temme.de einsehbar sind.
auf die Merkliste setzen Exposé drucken



