Büro | zur Miete | Nordostpark | Erstbezug | Dachterrasse
| Objekt-Nr | 872bvm |
| Gesamtfläche | 1.993 m² |
| Bürofläche | 1.410 m² |
| Teilbar ab | 410 m² |
| Mietpreis pro m² | 13,90 € |
| Verfügbar ab | nach Vereinbarung |
Lage
Der moderne Neubau befindet sich im Nordosten von Nürnberg im attraktiven und modernen Gewerbe- und Industriegebiet Nordostpark und bietet durch seine Nähe zum Flughafen und der Autobahn A3 eine sehr gute Verkehrsanbindung. Die Immobilie profitiert von ihrer ruhigen Lage und einer guten Anbindung an öffentliche Verkehrsmittel. Fußläufig erreichbar befinden sich Gastronomie, Bäcker und Coffeeshop.
Hauptbahnhof Nürnberg ca. 18 Fahrminuten
Ausstattung
- neueste Generation der Gebäudeautomation, Green Building Neubau
- energieeffiziente Gas-Wärmepumpe für Heizen
- emissionsarme Kältemaschine für Kühlfunktionen
- individuelle Einzelraumregelung für Heizen, Kühlen, Taupunktüberwachung, Jalousiesteuerung
- ökologisches Gebäudekonzept mit geringen Energiekosten
- individuelle, rasterlose Raumaufteilung pro Fenstereinheit möglich
- individuelle Gestaltung und Mitbestimmung des Innenausbaus durch den Mieter
- ebenerdige PKW-Parkplätze direkt am Gebäude, überdacht & freistehend
- erstklassige Infrastruktur
- eigener Hochspannungstrafo auf dem Gelände mit 1.250 kVA ist vorhanden, mit genügend hohen Reserven, Hausanschluss 400 A
- mehrere E-Car und E-Bike Ladestationsaufrüstungen problemlos möglich
- repräsentativer und moderner Eingangsbereich mit Feinsteinzeug
- Penthouse mit Dachterrassen zweiseitig
- hell und freundlich durch großzügige Fensterfronten
- lichte Raumhöhe 3 m
- isolierverglaste Leichtmetallfenster
- elektrische Außenjalousien
- computergerechte Beleuchtung der Bürobereiche, Deckenleuchten
- energiesparende LED-Leuchten für beste Lichtverhältnisse
- CAT7 EDV Verkabelung in den Büros
- Glasfaseranbindung, für schnelles Internet und Videokonferenzen bestens geeignet
- Bodenbelag nach Mieterwunsch
- die Raumaufteilung erfolgt nach Mieterwunsch
- Einzelbüros oder Open Space - alles ist möglich
- zwei Aufzuganlagen in allen Stockwerken, behindertengerecht, Türbreite 90cm
- zwei Haupttreppenhäuser und zwei Fluchttreppenhäuser
- separate Serverräume pro Mieteinheit
- das Grundstück ist eingezäunt und wird nachts verschlossen
- Außen- & Wegbeleuchtung, gesteuert über Dämmerungsschalter und Zeitschaltuhr
- E-Bike & E-Car Ladestationen nach Mieterwunsch
- 45 überdachte Fahrradstellplätze im Erdgeschoss
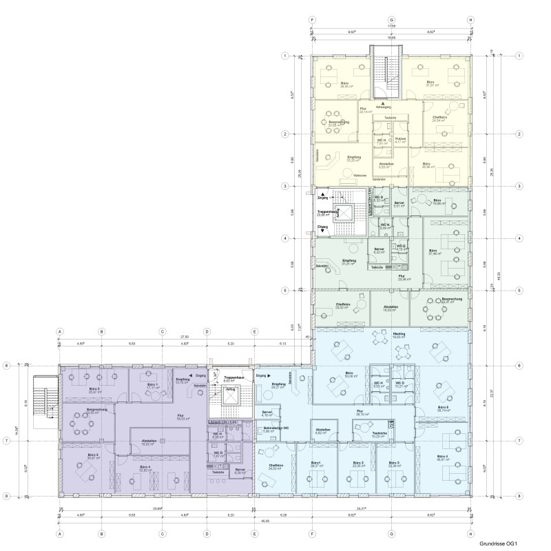
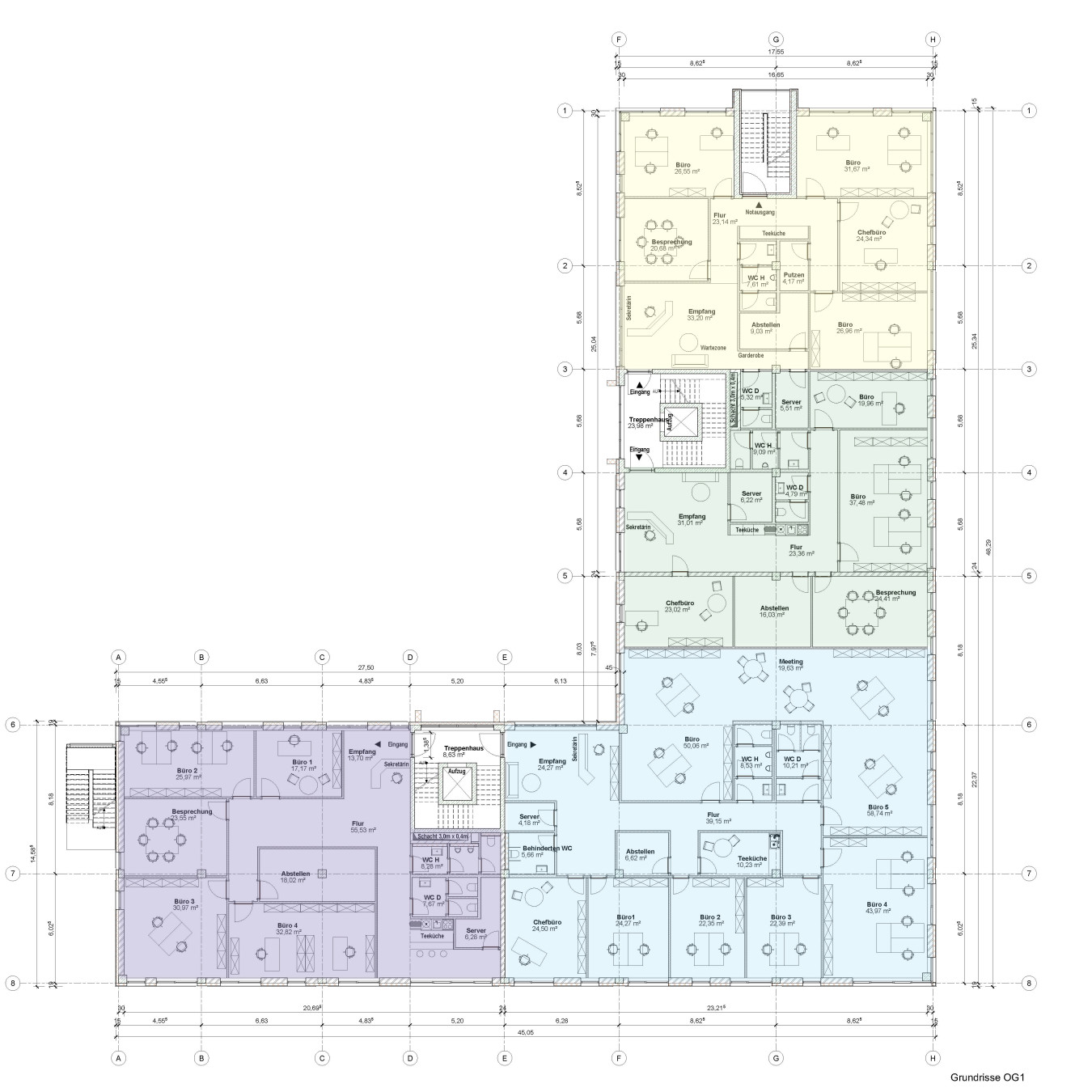
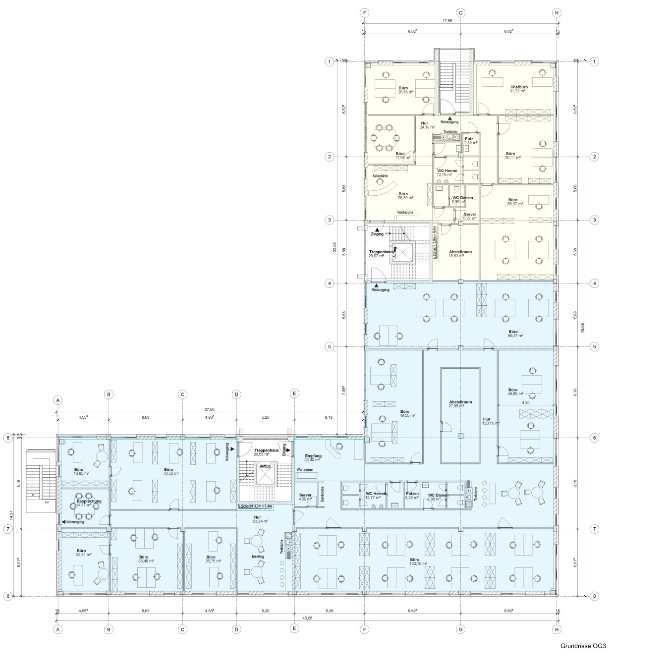
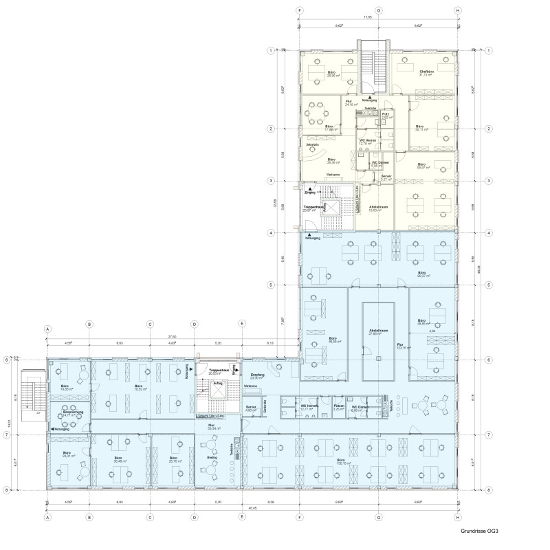
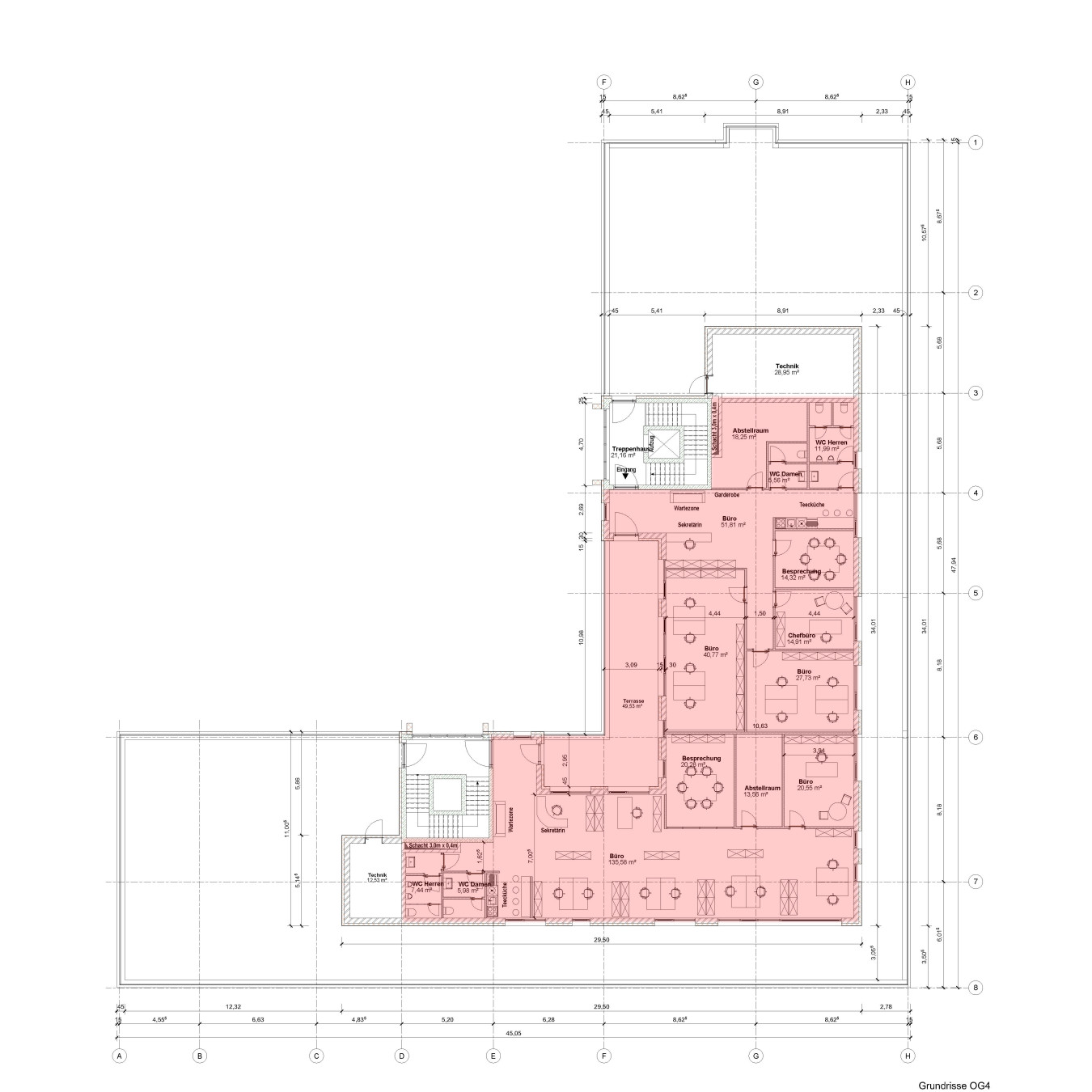
Beschreibung
ca. 500 m² Mieteinheit 2 (inkl. Dusche)
ca. 500 m² Mieteinheit 2 (inkl. Dusche)
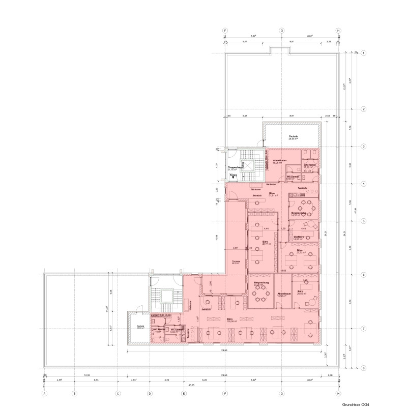
ca. 993 m² Gesamt 4. Obergeschoss (Die Dachterrasse wird zu 50 % angerechnet.)
25,00 m²/EUR** 4. Obergeschoss
deren Kosten und Verteilung.
**zzgl. 1,90 EUR/m² für die Dachtterrasse im 4. Obergeschoss
nach Vereinbarung
überdachte PKW Stellplätze à EUR 60,00 zzgl. MwSt.
Sonstiges
-Jeweils zzgl. Mehrwertsteuer, fällig bei Vertragsabschluss.
Vertreten durch unser Büro.
Telefon: 0911 548099-0 | info@temme.de
Wir werden tätig auf der Grundlage unserer Allgemeinen Geschäftsbedingungen, die auf www.temme.de einsehbar sind.
auf die Merkliste setzen Exposé drucken





